Abstract:
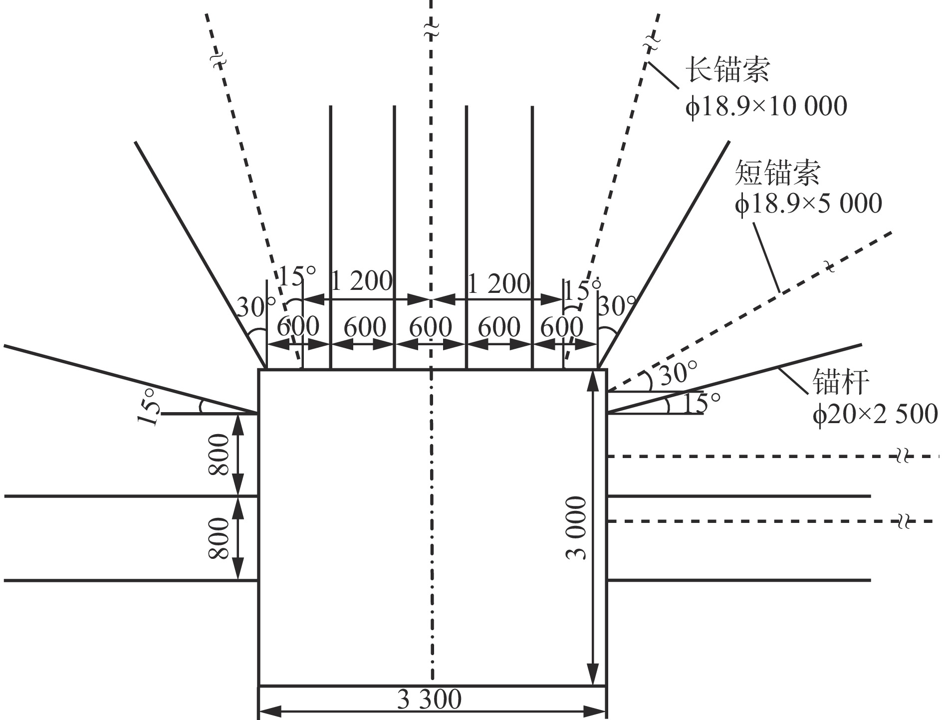
Currently, most research on rock burst prevention and control focuses on horizontal and gently inclined coal seams. However, due to the unique occurrence characteristics of near-vertical coal seams, the characteristics of rock burst in these seams are significantly different from those of conventional horizontal coal seams. Using the Wudong coal mine of CHN Energy Xinjiang Energy Co., Ltd. as a case study, numerical simulations were conducted to investigate the distribution characteristics of stress, displacement, and plastic zones of roadway surrounding rock in near-vertical coal seams under combined dynamic and static loads. The results showed that under static loads, the surrounding rock stress distribution exhibited regional stress interconnection and local high stress concentration, with asymmetric distribution characteristics of stress, displacement, and plastic zones. Specifically, the stress and displacement in the upper region of the roadways gradually increased as the distance to the hard roof decreased, reaching a peak at the junction of the coal body and the hard roof on the right shoulder of the roadway. Under combined dynamic and static loads, the asymmetric distribution characteristics of surrounding rock stress, displacement, and plastic zones were further intensified. The local peak stress significantly increased, and the maximum deformation of the surrounding rock caused by dynamic loads doubled compared to under the condition of static loads. The high stress concentration zones and plastic zones rapidly expanded. Based on the asymmetric damage characteristics of the roadway surrounding rock under combined dynamic and static loads, an optimized roadway support scheme was proposed for the near-vertical coal seam group at Wudong Coal Mine, which included the following measures: reducing the spacing between roof anchor bolts and cables to mitigate the effect of dynamic and static loads; increasing the number of roof anchor bolts and adjusting their inclination angles to address the roof deformation; adding short anchor cables at the right shoulder of the roadway to prevent the compression and prying of the hard roof; and enhancing the pre-tensioning force of the anchor bolts to improve the resistance to dynamic load impact. This optimized support scheme significantly improves the stability of the roadway surrounding rock under the condition of combined dynamic and static loads.